Słup Żelbetowy
wersja: SZ v2Program przeznaczony jest do obliczeń wytrzymałościowych słupów żelbetowych obciążonych mimośrodowo w płaszczyźnie symetrii przekroju, zgodnie z normą żelbetową PN-B-03264:2002.
Charakterystyka programu:
- w programie przewidziano do wyboru cztery warianty układu konstrukcyjnego słupa jednokondygnacyjnego:
- słup pośredniej kondygnacji ustroju szkieletowego,
- słup-wspornik najwyższej kondygnacji ustroju,
- słup-wspornik utwierdzony w stopie fundamentowej,
- słup pierwszej kondygnacji ustroju, utwierdzony w fundamencie.
- obliczenia prowadzone są dla słupów o przekroju prostokątnym i okrągłym,
- słupy mogą być monolityczne lub prefabrykowane,
- wbudowana jest procedura normowa umożliwiająca określenie współczynników długości wyboczeniowych w obu głównych płaszczyznach przekroju, dla elementów słupowych w różnych rodzajach ustrojów konstrukcyjnych.
Parametry materiałowe:
- możliwy jest wybór klas betonu od B15 do B60, przy czym program umożliwia stosowanie oznaczenia klasy betonu literą B (np. B25) lub literą C (np. C20/25),
- wbudowana jest lista normowych gatunków stali zbrojeniowych z możliwością wpisania na nią dodatkowych stali zbrojeniowych Użytkownika na podstawie własnych informacji o ich właściwościach wytrzymałościowych,
- możliwość deklarowania różnych gatunków stali na poszczególne rodzaje zbrojenia słupa: podłużnego (w układzie symetrycznym i niesymetrycznym), poprzecznego (strzemiona / uzwojenie) i montażowego,
- możliwość automatycznego lub ręcznego doboru zbrojenia podłużnego w przekroju słupa oraz rozstawu strzemion / skoku uzwojenia na jego długości.
Obciążenia:
- sprawne zadawanie obciążeń w postaci zestawów (kombinacji) sił wewnętrznych N i M działających w płaszczyźnie symetrii przekroju,
- możliwość wykonania obliczeń słupa dla wielu zestawów sił.
Wyniki obliczeń:
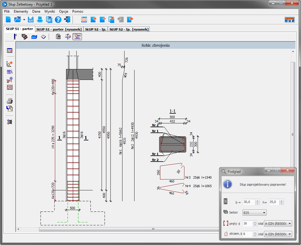
- blok wyników tekstowych zawierający warunki SGN (nośność odczytana z wykresu interakcji M-N) i SGU (rysy prostopadłe), poprzedzone wynikami pośrednimi, jak np. potrzebna i przyjęta powierzchnia zbrojenia, stopień zbrojenia, wymagany konstrukcyjny rozstaw strzemion,
- dostępny jest ‘Wykres interakcji M-N’, który prezentuje położenie punktów odpowiadających obciążeniom słupa (zestawom sił wewnętrznych) w obszarze krzywej nośności słupa,
- zwymiarowane szkice widoku i przekrojów poprzecznych słupa z rozmieszczeniem i oznaczeniem poszczególnych wkładek oraz ‘wyrzuconych’ prętów zbrojeniowych,
- wykaz stali zbrojeniowej; z możliwością dalszej jego ‘obróbki’ przy wykorzystaniu osobnego programu Edytor Wykazów Zbrojenia, który umożliwia eksport wykazu do edytora tekstu, arkusza kalkulacyjnego oraz programów CAD (także do pliku DXF),
- zmiana danych skutkuje dynamiczną zmianą rysunków i wyników obliczeń, co sprzyja optymalizacji projektowanej konstrukcji,
- funkcja ‘Podglądu toku obliczeń’ umożliwia wgląd do szczegółowego zapisu przebiegu obliczeń.
Notka obliczeniowa:
- zwięzła i czytelna forma notki obliczeniowej, której zakres Projektant może ustalić wg uznania,
- możliwość bezpośredniego wydruku z programu i zapisania notki do edytora tekstu lub pliku RTF.
Dodatkowe cechy programu:
- możliwość wykonania - w jednym zadaniu projektowym (pliku) - obliczeń dla wielu słupów żelbetowych; opcja 'Menadżera elementów' usprawnia zarządzanie nimi,
- liczne podpowiedzi dotyczące wprowadzanych danych oraz automatyczne wyznaczanie wartości parametrów i własności, jak np. nominalna grubość otulenia prętów,
- dostępne są różne zaawansowane założenia obliczeniowo-konstrukcyjne,
- obszerny plik pomocy (tzw. help) zawiera objaśnienia merytoryczne i funkcjonalne,
- możliwość korzystania z osobnego modułu Kalkulator Prętów Zbrojeniowych,
- współpraca programu z osobnym modułem Słup Żelbetowy-Rysunek DXF umożliwia otrzymanie rysunku wykonawczego słupa (jako bezpośredni wydruk skalowalnego rysunku z programu lub eksport tego rysunku do pliku DXF lub bezpośrednio do programu CAD) wzbogaconego o dodatkowe zbrojenie Użytkownika, dodatkowe opisy i elementy graficzne (osie konstrukcyjne, koty wysokościowe, poziomy, odnośniki, itd.) definiowanie przez Użytkownika oraz wykaz zbrojenia, tablicę materiałową i tabelkę rysunkową.
Prezentacja video programu




