Słup Żelbetowy - Rysunek CAD
wersja: SZ-CAD v2Program ten jest osobnym modułem współpracującym z programem Słup Żelbetowy. Umożliwia otrzymanie rysunku wykonawczego słupa wraz z wykazem zbrojenia, tablicą materiałową i tabelką rysunkową.
Charakterystyka programu:
Rysunek słupa jest generowany automatycznie na podstawie obliczeń wytrzymałościowych wykonanych programem Słup Żelbetowy. Użytkownik ma możliwość uzupełnienia treści rysunku o dodatkowe elementy, które nie podlegają obliczeniom - dodatkowe zbrojenie Użytkownika oraz różne opisy i elementy graficzne (koty, osie, opisy poziomów, itp.).
Rysunek wykonawczy słupa można uzyskać na dwa sposoby:
- wydruk skalowalnego rysunku bezpośrednio z programu (nie jest więc potrzebne oprogramowanie typu CAD, aby wydrukować duży rysunek wykonawczy); opcja ta jest też bardzo przydatna do szybkiego wydruku rysunku w celu sprawdzenia jego poprawności czy dokonanych zmian,
- przekazanie (eksport) rysunku do pliku DXF lub bezpośrednio do programu typu CAD (np. AutoCAD, IntelliCAD, ZwCAD, itp.); możliwa jest wtedy dalsza edycja rysunku w programie CAD w celu otrzymania kompleksowej, spójnej graficznie dokumentacji rysunkowej całego projektu.
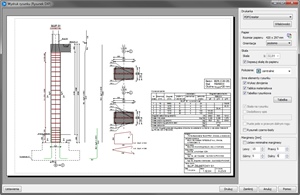
Rysunek wykonawczy słupa zawiera m.in.:
- widok i przekroje poprzeczne słupa,
- zbrojenie pokazane na widoku i na przekrojach,
- opisane i zwymiarowane wkładki zbrojeniowe 'wyrzucone' poza obrys słupa,
- wykaz zbrojenia,
- tablicę materiałową,
- tabelkę rysunkową,
- dodatkowe opisy i elementy graficzne rysunku, które można wprowadzić przed wydrukiem rysunku (osie konstrukcyjne, koty wysokościowe, opisy poziomów, opisy przekrojów i nazwa elementu, a także dodatkowe zbrojenie zdefiniowane przez Użytkownika).
Moduł Słup Żelbetowy-Rysunek DXF pozwala na zmianę numeracji prętów i przekrojów na rysunku. Jeśli poda się liczbę słupów, których dotyczy wykonywany rysunek, to zliczy dla nich zbrojenie w wykazie zbrojenia. Można również stworzyć własną tabelkę rysunkową określając pola jakie mają się w niej znaleźć; program wstawi automatycznie taką tabelkę na rysunek podczas jego eksportu czy wydruku.
Uwaga: Moduł współpracuje tylko z nową wersją programu Słup Żelbetowy v2.
Prezentacja video programu
Pliki do pobrania
Wersja DEMO programu Prezentacja video programu Przykładowy rysunek DXF Wersja do druku


